Real Estate Services
Register
Login
Commercial+
Property Search
Auctions
Commercial Agents
Hospitality
Development & Acquisitions
Management Services
Property Search
Auctions
Commercial Agents
Careers
Blog
Contact Us
Home
X
Setup|Reset Password
Login
Email Address
Password
Remember Me
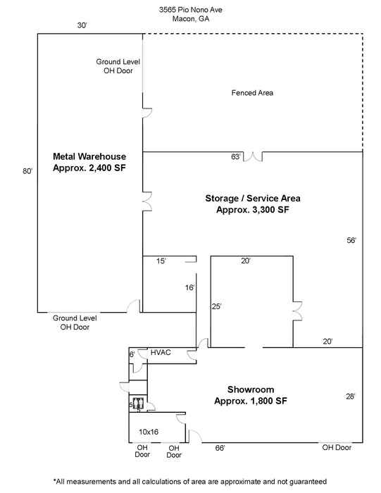
3565 Pio Nono Avenue
Macon, GA 31206
This Property is Off-Market.
X
3565 Pio Nono Avenue
X
ASK A QUESTION