3627 Mercer University Drive Macon, GA 31204
| Listing ID | 1519 | 
| Sale or Lease | SALE | 
| Property Type | RETAIL | 
| Property Use | Investment Property | 
| Property SubType | FREE STANDING BLDG | 
| Status | ACTIVE | 
| Price | $725,000.00 | 
| Unit SqFt. | 8692 | 
| Total Building Size SqFt. | 8692 | 
| Total Lot Size - Acres | 0.78 | 
| Days On Market | 377 | 
| Price Per SqFt. | Approx. $83.41 | 
| County | Bibb | 
| Year Built | 1984 | 
3627 Mercer University Drive Macon, GA 31204
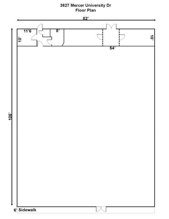
Property Description
PRICE REDUCED! 8,692 SF freestanding retail building available. Mostly open floorplan allows for easy modification for a variety of uses. Property sits on a 0.78 Acre lot and has ample parking (36 spaces). Great visibility on Mercer University Drive. Also available for lease.
Location Description
Located on Mercer University Drive, just minutes away from the Atrium Health Amphitheatre and The Macon Mall. Other surrounding neighbors include Ollie’s Bargain Outlet, Rack Room Shoes, Cato, Foot Locker, Pizza Hut, No Name Chicken, Burger King, Ken’s Stereo Macon, Capital City Bank, Title Max, Loan Max, and many more restaurants, retailers, and businesses.
Property Listed By:
Brochure
				
.pdf 
        
Highlights
- Freestanding Retail Building
 - Located in a high traffic area on Mercer University Drive
 - Ample Parking
 - Also For Lease
 
            









