3071 Broadway Macon, GA 31206
| Listing ID | 1664 |
| Sale or Lease | SALE |
| Property Type | INDUSTRIAL |
| Property Use | Vacant Property |
| Property SubType | WAREHOUSE |
| Status | ACTIVE |
| Price | $349,000.00 |
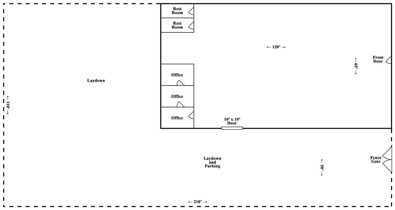
| Total Building Size SqFt. | 7845 |
| Total Lot Size - Acres | 0.69 |
| County | Bibb |
| Year Built | 1946 |
3071 Broadway Macon, GA 31206
Property Description
REDUCED! Property was formerly Rosson Sign. Warehouse area is 7,000 SF and office area is 845 SF for a total of 7,845 SF. Three phase power to site. Ceiling height is 11’ to metal beams (actual ceiling heights: 18’ center, 12’ eaves). Warehouse area includes one 10’ x 10’ road grade door. Roof is 2 years old. Offices have air conditioning, and warehouse has two unit heaters heating the entire warehouse space.
Location Description
This warehouse is located in a great industrial corridor in Macon, with great neighbors. Corridor is located close to Highway 80 (Eisenhower Parkway) and I-75 to the north and Highway 247 to the south. Also convenient to downtown Macon. Neighboring businesses include Olivers Auto & Truck Repair, Rush Truck Centers, Cassidy Machine Shop & Engine, Siding Supply Inc, and Fleet Pride Walthall, as well as many other light industrial businesses.
Property Listed By:
Brochure
.pdf
Utilities
- FENCED YARD
- ELECTRIC IS AVAILABLE
Highlights
- REDUCED!
- 3 Phase power to site
- Fenced laydown yard
- Located in a great industrial corridor
- Easy access to I-75
- Roof is 2 years old
- Convenient to Downtown Macon














