1193 Wesleyan Drive Macon, GA 31210
| Listing ID | 1672 |
| Sale or Lease | LEASE 4 spaces available |
| Property Type | RETAIL |
| Property SubType | RETAIL |
| Status | ACTIVE |
| Monthly Rent | $25.00 $/SF/Year |
| Lease Type | NNN |
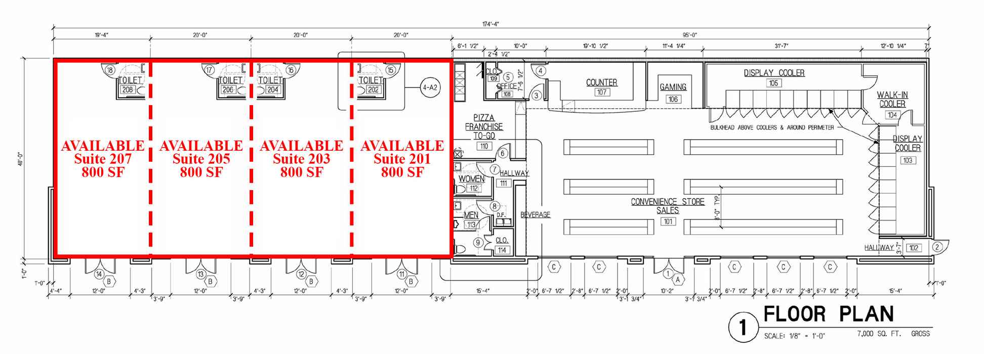
| Space Available SqFt. | 3200 |
| Total Building Size SqFt. | 7000 |
| Total Lot Size - Acres | 2.41 |
| Gross Leasable Area | 3600 |
| County | Bibb |
| Year Built | 2026 |
1193 Wesleyan Drive Macon, GA 31210
Space Description
Four 800 SF suites are available, and can be combined for a maximum contiguous space of up to 3,200 SF. Ideal for coffee/QSR, dessert/ice cream, salon/barber, nail spa, cellular, boutique fitness, medical/urgent service, insurance, specialty retail, and other neighborhood-serving concepts.
Property Description
Retail suites available at a new-construction convenience store/gas station in one of North Macon’s strongest retail corridors. The convenience anchor drives steady traffic, creating an ideal setting for service, food, and retail users that benefit from quick-stop visits & repeat customers.
Positioned in North Macon’s primary trade area, site benefits from strong household density and retail traffic patterns with quick access to the area’s major shopping, grocery anchors, & restaurant corridors.
Location Description
Located at the corner of Wesleyan Drive and Northside Drive. Neighbors and nearby businesses include Springdale Elementary School, Northside Prep Learning Center, The Madison Studio - Dance Education, Advanced Dental Arts, Food Depot, Family Dollar, CVS, Advance Auto Parts, OrthoGeorgia, Kroger, Cold Stone Creamery, Culver’s, Panera Bread, IHOP, Chick-fil-A, Starbucks, Dunkin’, Planet Fitness, Urban Air Trampoline Park, and many more retail, shopping, and restaurant establishments.
Property Listed By:
Brochure
.pdf
Utilities
- HEATING AVAILABLE
- COOLING AVAILABLE
- LIGHTING AVAILABLE
Highlights
- New construction convenience store/gas station
- Convenience store anchor
- Excellent visibility intersection
- High household density
- Strong morning & afternoon traffic counts due to school proximity
- Ideal for quick-stop food/service/retail users









