1660 Waterville Road Macon, GA 31206
| Listing ID | 1691 |
| Sale or Lease | LEASE |
| Property Type | INDUSTRIAL |
| Property SubType | WAREHOUSE |
| Status | ACTIVE |
| Monthly Rent | $6.00 $/SF/Year |
| Lease Type | NNN |
| Space Available SqFt. | 24000 |
| Total Building Size SqFt. | 24000 |
| Total Lot Size - Acres | 2.08 |
| Days On Market | 60 |
| County | Bibb |
| Year Built | 1970 |
1660 Waterville Road Macon, GA 31206
Property Description
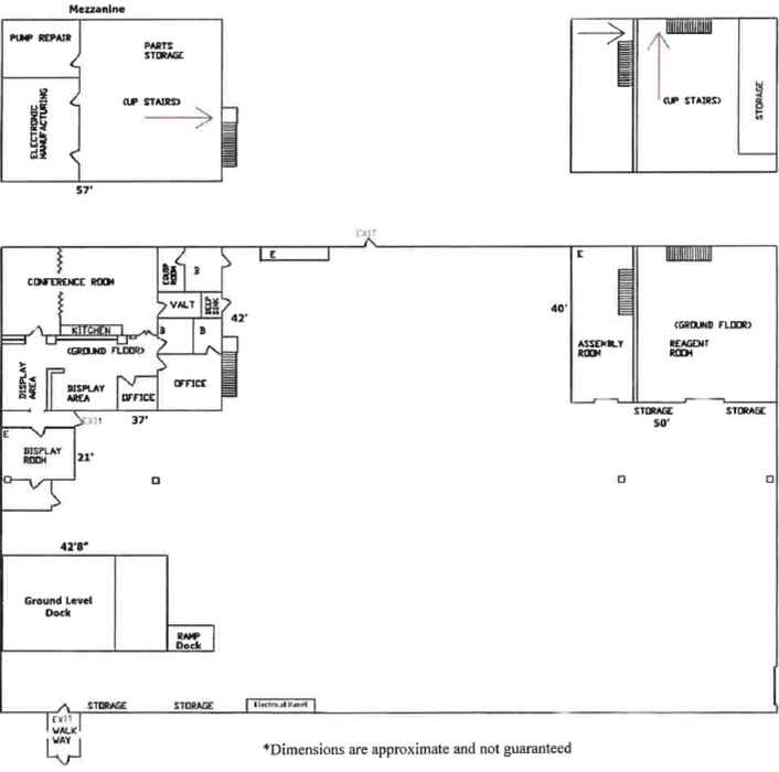
Warehouse area is 21,000 SF and office area is 3,000 SF for a total of 24,000 SF. There is an additional 22,000 SF office building located adjacent to the warehouse that can be utilized as and additional office space or removed to accommodate a large lay down yard, equipment storage, or truck parking. Three phase power to site with LED throughout, an infrared heating system and a Dry sprinkler system. Ceiling height is approximately 20’ with 40’ X 60’ column spacing supporting a flexible warehouse layout. The building does feature two 12’ X 15’ doors where the center column can be raised to create one large opening for oversized access. Loading includes one ground-level door and one ramped dock for versatile truck and equipment access. There is an additional 8’ X 8’ rear door with rail access/rail spur capability (the service can be restored). The yard is accessible for 53’ trailers with a fenced parking area in front of the building.
Location Description
The warehouse in Macon’s established industrial corridor near existing industrial users and distribution companies. The property is conveniently located off the US-80 interstate with easy access to the I-75 and US-41 interstate.
Property Listed By:
Brochure
.pdf
Utilities
- HEATING AVAILABLE
- COOLING AVAILABLE
- LIGHTING AVAILABLE
Highlights
- Warehouse Space 21000 SF and Office Area 3000 SF
- Additional Office Space with 22000 SF of Space Adjacent to Warehouse
- Three Phase Power On-Site
- Ceiling Height 20
- Two 12' X 15' Doors with One 8' X 8' Rear Door with Rail Access
- Air Conditioned Office Space
- Yard Accessible to 53' Trailers with Fencing













